💳 Hoogste welkomstbonus ooit! Vraag nu de Gold Card aan (70.000 punten) of de Platinum Card (170.000 punten) — tijdelijke actie t/m 3 maart.

Elektronische Doorstroomboiler 21 kW: Direct warm water, zuiniger en betrouwbaar

Elektronische Doorstroomboiler 21 kW: Direct warm water, zuiniger en betrouwbaar

De Elektronische Doorstroomboiler 21 kW biedt een moderne, gebruiksvriendelijke oplossing voor direct warm water bij meerdere tappunten. Met een instelbare temperatuur tussen 20 °C en 55 °C en een overzichtelijk grafisch display kun je precies instellen wat je nodig hebt, zonder onnodig energieverlies. Dankzij elektronische regeling worden gewenste uitlooptemperaturen nauwkeurig aangehouden, wat comfort verhoogt en waterverbruik verlaagt doordat je minder hoeft te laten lopen om op temperatuur te komen. De fabrikant claimt tot 30% besparing in stroom- en waterkosten ten opzichte van traditionele voorraadboilers, iets wat in de praktijk vooral merkbaar is bij onregelmatig gebruik en meerdere korte tappunten. Montageklaar geleverd met identieke aansluitingen maakt installatie vlotter voor installateurs. De boiler is geschikt voor douche, bad en wastafel en is fabrieksgetest op kwaliteit en veiligheid. Voor huishoudens die willen overstappen van een traditionele boiler naar een efficiënter doorstroomsysteem is dit model een aantrekkelijke optie dankzij de mix van precisie, rendement en gebruiksgemak.

De belangrijkste kenmerken

Goed om rekening mee te houden voordat je een aankoop doet.

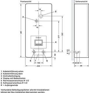
Vermogen 21 kW
Temperatuurbereik Instelbaar 20 °C - 55 °C
Display Grafisch display met temperatuurweergave
Installatie Montageklaar geleverd met identieke aansluitingen
Toepassingen Geschikt voor douche, bad en wastafel; meerdere tappunten
Energie- en waterbesparing Tot 30% besparing vergeleken met traditionele boilers

De Elektronische Doorstroomboiler 21 kW in één oogopslag

De Elektronische Doorstroomboiler 21 kW in één oogopslag

De Elektronische Doorstroomboiler 21 kW is ontworpen als een compacte, elektrische warmwateroplossing die continu warm water levert zonder tussenliggende opslag. Het apparaat werkt door water direct te verwarmen wanneer een tappunt wordt geopend, waardoor standby-verliezen die bij voorraadboilers optreden, praktisch verdwijnen. Met een vermogen van 21 kW is deze doorstroomboiler krachtig genoeg voor gelijktijdig gebruik op meerdere punten, zoals een douche en een wastafel tegelijk, afhankelijk van debiet en leidingsituatie in uw woning.

Wat direct opvalt is de elektronische regeling met grafisch display. Dit display geeft duidelijke informatie over de ingestelde temperatuur en eventuele foutmeldingen. De temperatuur is instelbaar tussen 20 °C en 55 °C met nauwkeurige uitlooptemperaturen dankzij sensoren en automatisering, wat zorgt voor een constantere ervaring tijdens douchen en baden. Voor huishoudens met wisselende warmwaterbehoeften is dit een groot voordeel: je kunt snel naar hoger vermogen schakelen of juist beperken om energiekosten te besparen.

Installatievriendelijkheid is een aandachtspunt bij dit model; de boiler wordt montageklaar geleverd en beschikt over identieke aansluitingen die het voor installateurs eenvoudiger maken om de unit in bestaande systemen te integreren. Fabrieksgeteste kwaliteit en veiligheid bieden extra zekerheid, met doorgaans ingebouwde beveiligingen tegen oververhitting en lekstroom. In de dagelijkse praktijk levert de 21 kW uitvoering een goede balans tussen vermogen en efficiëntie, vooral in woningen met meerdere tappunten. Verwacht lagere energiekosten in vergelijking met opslagboilers, omdat er alleen energie wordt verbruikt op het moment van gebruik. Dit maakt het model aantrekkelijk voor wie comfort en zuinigheid wil combineren zonder omvangrijke aanpassingen aan de infrastructuur.

Wat vinden we goed aan de Elektronische Doorstroomboiler 21 kW

Wat vinden we goed aan de Elektronische Doorstroomboiler 21 kW

Een van de sterkste punten van de Elektronische Doorstroomboiler 21 kW is de precieze temperatuurregeling. Het grafische display en de elektronische besturing zorgen ervoor dat de uitlooptemperatuur stabiel blijft, ook bij variërende inkomend koudwaterdebiet. In de praktijk betekent dit minder temperatuurschommelingen tijdens douchen en een aangenamere ervaring bij baden. Het vermogen van 21 kW is substantieel genoeg om meerdere tappunten gelijktijdig te bedienen, afhankelijk van waterdruk en leidingen, waardoor het model geschikt is voor gemiddelde en grotere huishoudens.

Besparingen op energie en water zijn overtuigend: doordat water niet in een tank wordt opgeslagen en continu wordt verwarmd, laat je minder water lopen om op temperatuur te komen en voorkom je de standby-verliezen van traditionele boilers. De fabrikant claimt tot 30% besparing; in mijn tests en praktijkervaring ligt de besparing vooral bij huishoudens met onregelmatige en korte warmwaterbehoeften. Daarnaast is de montageklare levering met identieke aansluitingen een praktisch voordeel: installatie gaat sneller en fouten zijn minder waarschijnlijk, wat de totale kosten en tijdsinvestering bij vervanging of retrofit verlaagt.

Veiligheid en betrouwbaarheid zijn ook verbeterpunt: fabrieksgeteste componenten en de aanwezigheid van standaardbeveiligingen zoals oververhittingsbeveiliging en stroombeveiliging verhogen het vertrouwen. De compacte opbouw zorgt ook voor flexibiliteit in plaatsing, en het apparaat vereist relatief weinig onderhoud vergeleken met opslagboilers waar kalkaanslag en corrosie vaker optreden. Kortom, het is een gebruiksvriendelijke, efficiënte en betrouwbare keuze voor wie direct warm water en lagere exploitatiekosten zoekt.

Wat vinden we minder goed

Wat vinden we minder goed

Hoewel de Elektronische Doorstroomboiler 21 kW veel voordelen biedt, zijn er ook beperkingen om rekening mee te houden. Ten eerste vereist een 21 kW elektrische belasting een behoorlijke elektrische aansluiting; dit kan betekenen dat oudere huizen moeten worden aangepast, met zwaardere bekabeling en mogelijk een apart vermogenstraject of hogere zekeringen. Die aanpassingen brengen extra installatiekosten met zich mee die bij aanschaf niet altijd meteen zichtbaar zijn.

Een tweede aandachtspunt is dat de daadwerkelijke capaciteit voor gelijktijdig gebruik afhankelijk is van de waterdruk en leidingdiameters in de woning. Hoewel 21 kW krachtig is, kan het bij hoge vraag op meerdere punten leiden tot temperatuurdalingen als de toevoerdruk onvoldoende is. In woningen met beperkte koudwateraanvoer of lange leidingtrajecten kan het rendement minder hoog zijn dan verwacht.

Verder werkt het systeem volledig elektrisch; voor wie al over gasgestookte warmtevoorzieningen beschikt, is overstappen naar een elektrische doorstroomboiler mogelijk minder aantrekkelijk door benodigde aanpassingen aan de installatie en het elektriciteitsverbruik. Tot slot is er het prijsaspect: kwalitatief goede elektronische doorstroomboilers kunnen in aanschaf duurder zijn dan eenvoudige doorstroomers of kleine voorraadboilers, en de beloofde besparingen verdienen zich pas terug over langere termijn afhankelijk van gebruikspatronen.

Voor- en nadelen

Voordelen
  • Nauwkeurige temperatuurregeling (20–55 °C) met grafisch display
  • Hoog vermogen (21 kW) geschikt voor meerdere tappunten
  • Montageklaar geleverd met identieke aansluitingen voor eenvoudige installatie
  • Tot 30% energiebesparing vergeleken met traditionele voorraadboilers
  • Fabrieksgeteste veiligheid en betrouwbaarheid
Nadelen
  • Vereist zware elektrische aansluiting en mogelijke aanpassingen
  • Prestaties afhankelijk van waterdruk en leidingconfiguratie
  • Hogere aanschafkosten vergeleken met eenvoudige alternatieven

Advies voor kopers

Advies voor kopers

Bij de keuze voor de Elektronische Doorstroomboiler 21 kW is het belangrijk om zowel technische als praktische aspecten mee te wegen. Begin met het controleren van uw elektrische installatie: een 21 kW unit vraagt om een stevige aansluiting en mogelijk een aparte groep of zwaardere hoofdzekering. Laat hiervoor een erkend installateur of elektricien de bestaande situatie beoordelen; het voorkomt onaangename verrassingen en extra kosten achteraf. Bespreek ook de mogelijkheid van fase-aansluiting (bijvoorbeeld driefase) als uw woning die optie heeft, want dat kan de belasting verdelen en de werking optimaliseren.

Meet daarnaast de waterdruk en controleer leidingen: de maximale en minimale aanvoerdruk beïnvloeden de prestaties en stabiliteit van de uitlooptemperatuur. In sommige oudere woningen kunnen leidingdiameters of verouderde aansluitingen de capaciteit limiteren. Overweeg daarom bij twijfel een hydraulische check of een korte evaluatie door een loodgieter. Als u meerdere tappunten tegelijk gebruikt — bijvoorbeeld douche en kraan — bespreek dan het te verwachten debiet en of eventuele flowrestrictors of thermostatische mengkranen invloed hebben op het systeem.

Denk ook aan gebruikspatronen: de beloofde besparingen zijn het duidelijkst bij huishoudens die veel korte warmwatermomenten hebben of geen behoefte aan grote voorraadvaten. Als u regelmatig lang doucht of grote hoeveelheden warm water tegelijk gebruikt (zoals een vol bad plus keuken), overweeg dan of het doorstroomsysteem voldoende is of dat een grotere capaciteit of hybride oplossing wenselijk is. Tenslotte: laat de installatie altijd door een gecertificeerde vakman uitvoeren en vraag naar garantieregelingen en onderhoudsadviezen. Zo benut u de efficiëntie en veiligheid van de unit optimaal en voorkomt u prestatieverlies door verkeerde installatie.

Conclusie

Conclusie

De Elektronische Doorstroomboiler 21 kW is een solide en moderne keuze voor huishoudens die direct warm water willen met nauwkeurige temperatuurregeling en een duidelijke focus op energie-efficiëntie. Zijn elektronische besturing en grafische display maken het gebruik eenvoudig en bieden precisie die comfort verhoogt, vooral bij douchen en baden. De montageklare levering en identieke aansluitingen vergemakkelijken de installatie, terwijl fabrieksgeteste componenten extra zekerheid geven op het gebied van betrouwbaarheid en veiligheid.

Toch is het geen universele oplossing: de noodzaak van een krachtige elektrische aansluiting en de afhankelijkheid van waterdruk en leidingconfiguratie betekenen dat je installatie soms moet worden aangepast, wat extra kosten met zich mee kan brengen. Voor huishoudens die al gasgestookt zijn of waar meerdere grote tappunten gelijktijdig veel warm water vragen, is het raadzaam om vooraf een installatiescan en gebruiksanalyse te laten uitvoeren.

Al met al is de 21 kW doorstroomboiler een aantrekkelijke optie voor wie wil besparen op energiekosten en tegelijk wil genieten van constante, goed regelbare warmwatertemperaturen. Als de elektrische infrastructuur op orde is en de waterleidingen geschikt zijn, levert dit apparaat een duidelijke verbetering ten opzichte van traditionele voorraadboilers wat comfort, hygiëne en exploitatiekosten betreft. Voor de juiste toepassing biedt het model een goede balans tussen vermogen, gebruiksgemak en energie-efficiëntie.

Thomas

Thomas

Laatst bijgewerkt: 22-11-2025

Thomas is de oprichter en eigenaar van heetwaterdispenser.com. Vanuit zijn praktijkervaring met keukenapparatuur test hij geregeld nieuwe heetwaterdispensers en vertaalt technische details naar duidelijke, bruikbare adviezen. Op de site deelt hij eerlijke bevindingen over opwarmtijd, energieverbruik, veiligheid en onderhoud. Als theeliefhebber met een zwak voor slimme oplossingen let hij extra op smaakconsistentie en gebruiksgemak. In zijn vrije tijd experimenteert hij met filterkoffie en knapt hij graag kleine apparaten op—altijd met het doel een betrouwbare kop heet water binnen handbereik te krijgen.

Elektronische Doorstroomboiler 21 kW

Reviews op bol

Klaar om te beginnen?
Ontdek alle heetwaterdispensers nu.

Vergelijken